Rated 3.5/5
based on 11 customer reviews
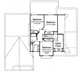
15-869Bedrooms: 4 Bathrooms: 2 Half Baths: 1 Heated Square Feet: 2540
Fully Buildable Custom Home Plan Designs and Blueprints
TraditionalCountryLuxury
* Note: Photographs may differ from actual blueprints. For more detailed information, please refer to the floor plans.
Plan Style:
TraditionalCountryLuxury
Floors:
2 Floors
Rooms:
Bedrooms: 4
Bathrooms: 2
Half Baths: 1
Square Foot
Heated Square Footage: 2540
Under Roof Square Footage: 2540
Master Features:
Garden Tub / Jacuzzi
Dual Sinks
Private Toilet
Walk in Closet
Shower stall (no tub)
Master on 1st Floor
Master Split from other bedrooms
Dual Sinks
Private Toilet
Walk in Closet
Shower stall (no tub)
Master on 1st Floor
Master Split from other bedrooms
Extra Features:
Exterior Columns
Fireplace
FrenchDoors
Front Load Garage
Laundry on 1st Floor
Open Floor Plan
Decorative Ceiling
Covered Porch on Front
Covered Porch on Rear
Cathedral or Vaulted Ceilings
Fireplace
FrenchDoors
Front Load Garage
Laundry on 1st Floor
Open Floor Plan
Decorative Ceiling
Covered Porch on Front
Covered Porch on Rear
Cathedral or Vaulted Ceilings
Dimensions:
Width: 59'-10"
Depth: 57'-10"
Depth: 57'-10"
Kitchen Features
Island
Raised Bar / Snack Bar
Dual Sinks
Breakfast Nook
Raised Bar / Snack Bar
Dual Sinks
Breakfast Nook
BEDROOMS:
4
BATHS:
2
$0.00
Current package selection price.
More plans by this designer
THE RESOURCES TO TURN YOUR PLAN INTO A HOME!




