Rated 3.5/5
based on 11 customer reviews
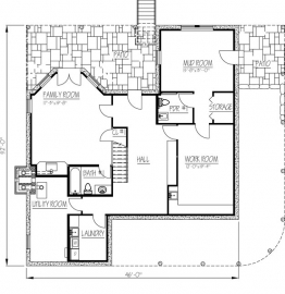
11-432Bedrooms: 3 Bathrooms: 3 Half Baths: 1 Heated Square Feet: 3030
Fully Buildable Custom Home Plan Designs and Blueprints
CountryBuilderLuxury
* Note: Photographs may differ from actual blueprints. For more detailed information, please refer to the floor plans.
Plan Style:
CountryBuilderLuxury
Floors:
2 Floors
Rooms:
Bedrooms: 3
Bathrooms: 3
Half Baths: 1
Square Foot
Heated Square Footage: 3030
Under Roof Square Footage: 5579
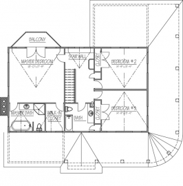
Master Features:
Garden Tub / Jacuzzi
Walk in Closet
Shower stall (no tub)
Master on 2nd Floor
Master Split from other bedrooms
Walk in Closet
Shower stall (no tub)
Master on 2nd Floor
Master Split from other bedrooms
Extra Features:
Deck
Balcony Outside
Fireplace
FrenchDoors
Laundry in Basement
Covered Porch on Front
Balcony Outside
Fireplace
FrenchDoors
Laundry in Basement
Covered Porch on Front
Dimensions:
Width: 56'-0"
Depth: 52'-0"
Ridge Height: 27'-3"
Main Ceiling: 9'-0"
Upper Ceiling: 8'-0"
Primary Roof Pitch: 9/12
Exterior Framing: 2x6
Depth: 52'-0"
Ridge Height: 27'-3"
Main Ceiling: 9'-0"
Upper Ceiling: 8'-0"
Primary Roof Pitch: 9/12
Exterior Framing: 2x6
Kitchen Features
Country Kitchen
Raised Bar / Snack Bar
Dual Sinks
Raised Bar / Snack Bar
Dual Sinks
BEDROOMS:
3
BATHS:
3
$0.00
Current package selection price.
More plans by this designer
THE RESOURCES TO TURN YOUR PLAN INTO A HOME!




