Rated 3.5/5
based on 11 customer reviews
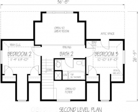
11-463Bedrooms: 3 Bathrooms: 2 Heated Square Feet: 1806
Fully Buildable Custom Home Plan Designs and Blueprints
CountryCape CodLuxury
* Note: Photographs may differ from actual blueprints. For more detailed information, please refer to the floor plans.
Plan Style:
CountryCape CodLuxury
Floors:
2 Floors
Rooms:
Bedrooms: 3
Bathrooms: 2
Square Foot
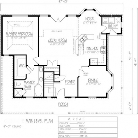
Heated Square Footage: 1806
Under Roof Square Footage: 2294
Master Features:
Garden Tub / Jacuzzi
Dual Sinks
Walk in Closet
Shower stall (no tub)
Master on 1st Floor
Master Split from other bedrooms
Dual Sinks
Walk in Closet
Shower stall (no tub)
Master on 1st Floor
Master Split from other bedrooms
Extra Features:
Deck
FrenchDoors
Laundry on 1st Floor
Open Floor Plan
Patio / Terrace / Veranda
Decorative Ceiling
Covered Porch on Front
Wrap Around Porch
Cathedral or Vaulted Ceilings
FrenchDoors
Laundry on 1st Floor
Open Floor Plan
Patio / Terrace / Veranda
Decorative Ceiling
Covered Porch on Front
Wrap Around Porch
Cathedral or Vaulted Ceilings
Dimensions:
Width: 47'-10"
Depth: 41'-4"
Ridge Height: 26'-5"
Main Ceiling: 9'-0"
Upper Ceiling: 8'-0"
Primary Roof Pitch: 18
Exterior Framing: 21
Depth: 41'-4"
Ridge Height: 26'-5"
Main Ceiling: 9'-0"
Upper Ceiling: 8'-0"
Primary Roof Pitch: 18
Exterior Framing: 21
Kitchen Features
Country Kitchen
Island
Raised Bar / Snack Bar
Dual Sinks
Breakfast Nook
Island
Raised Bar / Snack Bar
Dual Sinks
Breakfast Nook
BEDROOMS:
3
BATHS:
2
$0.00
Current package selection price.
More plans by this designer
THE RESOURCES TO TURN YOUR PLAN INTO A HOME!




