Rated 3.5/5
based on 11 customer reviews
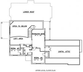
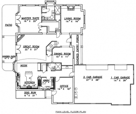
14-810Bedrooms: 3 Bathrooms: 2 Half Baths: 1 Heated Square Feet: 4350
Fully Buildable Custom Home Plan Designs and Blueprints
RanchCountryBuilder
* Note: Photographs may differ from actual blueprints. For more detailed information, please refer to the floor plans.
Plan Style:
RanchCountryBuilder
Floors:
2 Floors
Rooms:
Bedrooms: 3
Bathrooms: 2
Half Baths: 1
Square Foot
Heated Square Footage: 4350
Under Roof Square Footage: 4350
Master Features:
Garden Tub / Jacuzzi
Dual Sinks
Private Toilet
Walk in Closet
Shower stall (no tub)
Master on 1st Floor
Master Split from other bedrooms
Dual Sinks
Private Toilet
Walk in Closet
Shower stall (no tub)
Master on 1st Floor
Master Split from other bedrooms
Extra Features:
Deck
Exterior Columns
Interior Columns
Fireplace
FrenchDoors
Front Load Garage
Laundry on 1st Floor
Open Floor Plan
Covered Porch on Front
Covered Porch on Rear
Cathedral or Vaulted Ceilings
Exterior Columns
Interior Columns
Fireplace
FrenchDoors
Front Load Garage
Laundry on 1st Floor
Open Floor Plan
Covered Porch on Front
Covered Porch on Rear
Cathedral or Vaulted Ceilings
Dimensions:
Width: 88'-8"
Depth: 77'-6"
Ridge Height: 35'-5"
Primary Roof Pitch: 8/12
Depth: 77'-6"
Ridge Height: 35'-5"
Primary Roof Pitch: 8/12
Kitchen Features
Island
Raised Bar / Snack Bar
Dual Sinks
Regular Pantry
Breakfast Nook
Raised Bar / Snack Bar
Dual Sinks
Regular Pantry
Breakfast Nook
BEDROOMS:
3
BATHS:
2
$0.00
Current package selection price.
More plans by this designer
THE RESOURCES TO TURN YOUR PLAN INTO A HOME!




