Rated 3.5/5
based on 11 customer reviews
14-923Bedrooms: 4 Bathrooms: 4 Half Baths: 2 Heated Square Feet: 3739
Fully Buildable Custom Home Plan Designs and Blueprints
French country
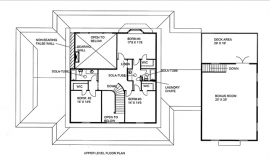
* Note: Photographs may differ from actual blueprints. For more detailed information, please refer to the floor plans.
Plan Style:
French country
Floors:
2 Floors
Rooms:
Bedrooms: 4
Bathrooms: 4
Half Baths: 2
Square Foot
Heated Square Footage: 3739
Under Roof Square Footage: 5076
Master Features:
Dual Sinks
Private Toilet
Walk in Closet
Shower stall (no tub)
Master on 1st Floor
Master Split from other bedrooms
Private Toilet
Walk in Closet
Shower stall (no tub)
Master on 1st Floor
Master Split from other bedrooms
Extra Features:
Deck
Exterior Columns
Fireplace
FrenchDoors
Side Load Garage
Laundry on 1st Floor
Open Floor Plan
Decorative Ceiling
Pocket Doors
Covered Porch on Front
Wrap Around Porch
Cathedral or Vaulted Ceilings
Exterior Columns
Fireplace
FrenchDoors
Side Load Garage
Laundry on 1st Floor
Open Floor Plan
Decorative Ceiling
Pocket Doors
Covered Porch on Front
Wrap Around Porch
Cathedral or Vaulted Ceilings
Dimensions:
Width: 112''
Depth: 57'
Ridge Height: 28'3
Main Ceiling: 9'
Upper Ceiling: 8'1
Primary Roof Pitch: 12
Depth: 57'
Ridge Height: 28'3
Main Ceiling: 9'
Upper Ceiling: 8'1
Primary Roof Pitch: 12
Kitchen Features
Island
Raised Bar / Snack Bar
Dual Sinks
Regular Pantry
Raised Bar / Snack Bar
Dual Sinks
Regular Pantry
BEDROOMS:
4
BATHS:
4
$0.00
Current package selection price.
More plans by this designer
THE RESOURCES TO TURN YOUR PLAN INTO A HOME!




