Rated 3.5/5
based on 11 customer reviews
15-1781Bedrooms: 3 Bathrooms: 2 Half Baths: 1 Heated Square Feet: 2077
Fully Buildable Custom Home Plan Designs and Blueprints
French countryTraditional
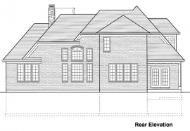
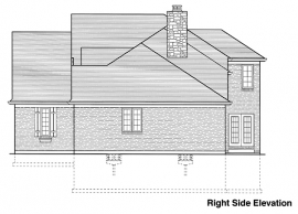
* Note: Photographs may differ from actual blueprints. For more detailed information, please refer to the floor plans.
Plan Style:
French countryTraditional
Floors:
2 Floors
Rooms:
Bedrooms: 3
Bathrooms: 2
Half Baths: 1
Square Foot
Heated Square Footage: 2077
Under Roof Square Footage: 2651
Master Features:
Garden Tub / Jacuzzi
Dual Sinks
Private Toilet
Walk in Closet
Shower stall (no tub)
Master on 1st Floor
Master Split from other bedrooms
Dual Sinks
Private Toilet
Walk in Closet
Shower stall (no tub)
Master on 1st Floor
Master Split from other bedrooms
Extra Features:
Exterior Columns
Fireplace
FrenchDoors
Front Load Garage
Laundry on 1st Floor
Open Floor Plan
Decorative Ceiling
Covered Porch on Rear
Cathedral or Vaulted Ceilings
Window seat
Fireplace
FrenchDoors
Front Load Garage
Laundry on 1st Floor
Open Floor Plan
Decorative Ceiling
Covered Porch on Rear
Cathedral or Vaulted Ceilings
Window seat
Dimensions:
Width: 57'-0"
Depth: 49'-8"
Ridge Height: 25'-9"
Main Ceiling: 9'-0"
Upper Ceiling: 8'-0"
Primary Roof Pitch: 8/12
Exterior Framing: 2x4
Depth: 49'-8"
Ridge Height: 25'-9"
Main Ceiling: 9'-0"
Upper Ceiling: 8'-0"
Primary Roof Pitch: 8/12
Exterior Framing: 2x4
Kitchen Features
Island
Raised Bar / Snack Bar
Regular Pantry
Raised Bar / Snack Bar
Regular Pantry
BEDROOMS:
3
BATHS:
2
$0.00
Current package selection price.
More plans by this designer
THE RESOURCES TO TURN YOUR PLAN INTO A HOME!




