Rated 3.5/5
based on 11 customer reviews
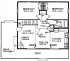
17-591Bedrooms: 2 Bathrooms: 1 Heated Square Feet: 1255
Fully Buildable Custom Home Plan Designs and Blueprints
Cape CodLake frontVacation
* Note: Photographs may differ from actual blueprints. For more detailed information, please refer to the floor plans.
Plan Style:
Cape CodLake frontVacation
Floors:
2 Floors
Rooms:
Bedrooms: 2
Bathrooms: 1
Square Foot
Heated Square Footage: 1255
Under Roof Square Footage: 2637
Master Features:
Master on 1st Floor
Extra Features:
Deck
Open Floor Plan
Cathedral or Vaulted Ceilings
Open Floor Plan
Cathedral or Vaulted Ceilings
Dimensions:
Width: 32'-0"
Depth: 30'-0"
Ridge Height: 22'-6"
Main Ceiling: 8'-0"
Upper Ceiling: 7'-6"
Primary Roof Pitch: 9
Exterior Framing: 2x6
Depth: 30'-0"
Ridge Height: 22'-6"
Main Ceiling: 8'-0"
Upper Ceiling: 7'-6"
Primary Roof Pitch: 9
Exterior Framing: 2x6
Kitchen Features
Country Kitchen
BEDROOMS:
2
BATHS:
1
$0.00
Current package selection price.
More plans by this designer
THE RESOURCES TO TURN YOUR PLAN INTO A HOME!




