Rated 3.5/5
based on 11 customer reviews
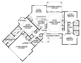
18-980Bedrooms: 3 Bathrooms: 2 Half Baths: 1 Heated Square Feet: 2065
Fully Buildable Custom Home Plan Designs and Blueprints
CountryCraftsmanRanch
* Note: Photographs may differ from actual blueprints. For more detailed information, please refer to the floor plans.
Plan Style:
CountryCraftsmanRanch
Floors:
1 Floors
Rooms:
Bedrooms: 3
Bathrooms: 2
Half Baths: 1
Square Foot
Heated Square Footage: 2065
Under Roof Square Footage: 2805
Master Features:
Dual Sinks
Private Toilet
Walk in Closet
His and Hers Closets
Shower stall (no tub)
Master on 1st Floor
Sitting Area
Master Split from other bedrooms
Private Toilet
Walk in Closet
His and Hers Closets
Shower stall (no tub)
Master on 1st Floor
Sitting Area
Master Split from other bedrooms
Extra Features:
Exterior Columns
Fireplace
FrenchDoors
Side Load Garage
Laundry on 1st Floor
Open Floor Plan
Decorative Ceiling
Covered Porch on Front
Covered Porch on Rear
Fireplace
FrenchDoors
Side Load Garage
Laundry on 1st Floor
Open Floor Plan
Decorative Ceiling
Covered Porch on Front
Covered Porch on Rear
Dimensions:
Width: 81'-3"
Depth: 63'-8"
Ridge Height: 20'
Primary Roof Pitch: 9
Depth: 63'-8"
Ridge Height: 20'
Primary Roof Pitch: 9
Kitchen Features
Raised Bar / Snack Bar
Regular Pantry
Breakfast Nook
Regular Pantry
Breakfast Nook
BEDROOMS:
3
BATHS:
2
$0.00
Current package selection price.
More plans by this designer
THE RESOURCES TO TURN YOUR PLAN INTO A HOME!



