Rated 3.5/5
based on 11 customer reviews
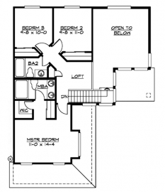
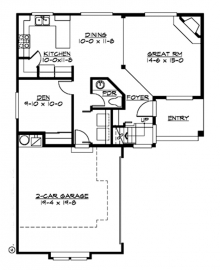
19-1565Bedrooms: 3 Bathrooms: 2 Half Baths: 1 Heated Square Feet: 1508
Fully Buildable Custom Home Plan Designs and Blueprints
CraftsmanNorthwestFarmhouse
* Note: Photographs may differ from actual blueprints. For more detailed information, please refer to the floor plans.
Plan Style:
CraftsmanNorthwestFarmhouse
Floors:
2 Floors
Rooms:
Bedrooms: 3
Bathrooms: 2
Half Baths: 1
Square Foot
Heated Square Footage: 1508
Under Roof Square Footage: 1908
Master Features:
Dual Sinks
Walk in Closet
His and Hers Closets
Master on 2nd Floor
Master Split from other bedrooms
Walk in Closet
His and Hers Closets
Master on 2nd Floor
Master Split from other bedrooms
Extra Features:
Exterior Columns
Interior Columns
Fireplace
Front Load Garage
Side Load Garage
Laundry on 1st Floor
Open Floor Plan
Covered Porch on Front
Cathedral or Vaulted Ceilings
Interior Columns
Fireplace
Front Load Garage
Side Load Garage
Laundry on 1st Floor
Open Floor Plan
Covered Porch on Front
Cathedral or Vaulted Ceilings
Dimensions:
Width: 35'-0"
Depth: 45'-0'
Ridge Height: 23'-6"
Primary Roof Pitch: 6:12
Depth: 45'-0'
Ridge Height: 23'-6"
Primary Roof Pitch: 6:12
Kitchen Features
Regular Pantry
BEDROOMS:
3
BATHS:
2
$0.00
Current package selection price.
More plans by this designer
THE RESOURCES TO TURN YOUR PLAN INTO A HOME!




