Rated 3.5/5
based on 11 customer reviews
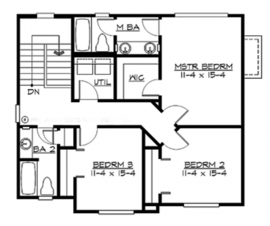
19-1566Bedrooms: 3 Bathrooms: 2 Half Baths: 1 Heated Square Feet: 1570
Fully Buildable Custom Home Plan Designs and Blueprints
CraftsmanNorthwestTraditional
* Note: Photographs may differ from actual blueprints. For more detailed information, please refer to the floor plans.
Plan Style:
CraftsmanNorthwestTraditional
Floors:
2 Floors
Rooms:
Bedrooms: 3
Bathrooms: 2
Half Baths: 1
Square Foot
Heated Square Footage: 1570
Under Roof Square Footage: 2338
Master Features:
Dual Sinks
Walk in Closet
Master on 2nd Floor
Walk in Closet
Master on 2nd Floor
Extra Features:
Deck
Fireplace
FrenchDoors
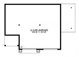
Front Load Garage
Basement Garage
Laundry on 2nd Floor
Covered Porch on Front
Fireplace
FrenchDoors
Front Load Garage
Basement Garage
Laundry on 2nd Floor
Covered Porch on Front
Dimensions:
Width: 32'-0"
Depth: 28'-0"
Ridge Height: 24'-6"
Primary Roof Pitch: 6:12
Depth: 28'-0"
Ridge Height: 24'-6"
Primary Roof Pitch: 6:12
Kitchen Features
Regular Pantry
BEDROOMS:
3
BATHS:
2
$0.00
Current package selection price.
More plans by this designer
THE RESOURCES TO TURN YOUR PLAN INTO A HOME!




