Rated 3.5/5
based on 11 customer reviews
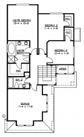
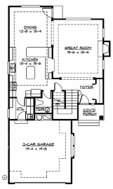
19-1572Bedrooms: 3 Bathrooms: 2 Half Baths: 1 Heated Square Feet: 2127
Fully Buildable Custom Home Plan Designs and Blueprints
CraftsmanNorthwestFarmhouse
* Note: Photographs may differ from actual blueprints. For more detailed information, please refer to the floor plans.
Plan Style:
CraftsmanNorthwestFarmhouse
Floors:
2 Floors
Rooms:
Bedrooms: 3
Bathrooms: 2
Half Baths: 1
Square Foot
Heated Square Footage: 2127
Under Roof Square Footage: 2538
Master Features:
Garden Tub / Jacuzzi
Dual Sinks
Walk in Closet
Shower stall (no tub)
Master on 2nd Floor
Dual Sinks
Walk in Closet
Shower stall (no tub)
Master on 2nd Floor
Extra Features:
Exterior Columns
Fireplace
FrenchDoors
Front Load Garage
Laundry on 1st Floor
Patio / Terrace / Veranda
Decorative Ceiling
Covered Porch on Front
Cathedral or Vaulted Ceilings
Fireplace
FrenchDoors
Front Load Garage
Laundry on 1st Floor
Patio / Terrace / Veranda
Decorative Ceiling
Covered Porch on Front
Cathedral or Vaulted Ceilings
Dimensions:
Width: 30'-0"
Depth: 56'-0"
Ridge Height: 25'-0"
Primary Roof Pitch: 6:12
Depth: 56'-0"
Ridge Height: 25'-0"
Primary Roof Pitch: 6:12
Kitchen Features
Island
BEDROOMS:
3
BATHS:
2
$0.00
Current package selection price.
More plans by this designer
THE RESOURCES TO TURN YOUR PLAN INTO A HOME!




