Rated 3.5/5
based on 11 customer reviews
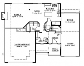
19-1574Bedrooms: 3 Bathrooms: 2 Half Baths: 1 Heated Square Feet: 2130
Fully Buildable Custom Home Plan Designs and Blueprints
CraftsmanShingleNorthwest
* Note: Photographs may differ from actual blueprints. For more detailed information, please refer to the floor plans.
Plan Style:
CraftsmanShingleNorthwest
Floors:
2 Floors
Rooms:
Bedrooms: 3
Bathrooms: 2
Half Baths: 1
Square Foot
Heated Square Footage: 2130
Under Roof Square Footage: 2530
Master Features:
Garden Tub / Jacuzzi
Dual Sinks
Private Toilet
Walk in Closet
His and Hers Closets
Shower stall (no tub)
Master on 2nd Floor
Dual Sinks
Private Toilet
Walk in Closet
His and Hers Closets
Shower stall (no tub)
Master on 2nd Floor
Extra Features:
Exterior Columns
Interior Columns
Fireplace
FrenchDoors
Front Load Garage
Laundry on 1st Floor
Open Floor Plan
Covered Porch on Front
Cathedral or Vaulted Ceilings
Interior Columns
Fireplace
FrenchDoors
Front Load Garage
Laundry on 1st Floor
Open Floor Plan
Covered Porch on Front
Cathedral or Vaulted Ceilings
Dimensions:
Width: 48'-0"
Depth: 38'-0"
Ridge Height: 25'-6"
Primary Roof Pitch: 7:12
Depth: 38'-0"
Ridge Height: 25'-6"
Primary Roof Pitch: 7:12
Kitchen Features
Island
Breakfast Nook
Breakfast Nook
BEDROOMS:
3
BATHS:
2
$0.00
Current package selection price.
More plans by this designer
THE RESOURCES TO TURN YOUR PLAN INTO A HOME!




