Rated 3.5/5
based on 11 customer reviews
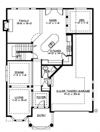
19-1591Bedrooms: 3 Bathrooms: 2 Half Baths: 1 Heated Square Feet: 2673
Fully Buildable Custom Home Plan Designs and Blueprints
HamptonShingleTraditional
* Note: Photographs may differ from actual blueprints. For more detailed information, please refer to the floor plans.
Plan Style:
HamptonShingleTraditional
Floors:
2 Floors
Rooms:
Bedrooms: 3
Bathrooms: 2
Half Baths: 1
Square Foot
Heated Square Footage: 2673
Under Roof Square Footage: 3225
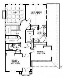
Master Features:
Garden Tub / Jacuzzi
Dual Sinks
Private Toilet
Walk in Closet
Shower stall (no tub)
Master on 2nd Floor
Master Split from other bedrooms
Dual Sinks
Private Toilet
Walk in Closet
Shower stall (no tub)
Master on 2nd Floor
Master Split from other bedrooms
Extra Features:
Balcony Outside
Balcony Inside
Exterior Columns
Interior Columns
Fireplace
FrenchDoors
Front Load Garage
Laundry on 2nd Floor
Open Floor Plan
Decorative Ceiling
Covered Porch on Front
Cathedral or Vaulted Ceilings
Balcony Inside
Exterior Columns
Interior Columns
Fireplace
FrenchDoors
Front Load Garage
Laundry on 2nd Floor
Open Floor Plan
Decorative Ceiling
Covered Porch on Front
Cathedral or Vaulted Ceilings
Dimensions:
Width: 40'-0"
Depth: 55'-0"
Ridge Height: 29'-0"
Primary Roof Pitch: 8:12
Depth: 55'-0"
Ridge Height: 29'-0"
Primary Roof Pitch: 8:12
Kitchen Features
Island
Raised Bar / Snack Bar
Regular Pantry
Breakfast Nook
Raised Bar / Snack Bar
Regular Pantry
Breakfast Nook
BEDROOMS:
3
BATHS:
2
$0.00
Current package selection price.
More plans by this designer
THE RESOURCES TO TURN YOUR PLAN INTO A HOME!




