Rated 3.5/5
based on 11 customer reviews
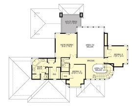
19-1596Bedrooms: 3 Bathrooms: 2 Half Baths: 1 Heated Square Feet: 2551
Fully Buildable Custom Home Plan Designs and Blueprints
PrairieContemporaryModern
* Note: Photographs may differ from actual blueprints. For more detailed information, please refer to the floor plans.
Plan Style:
PrairieContemporaryModern
Floors:
2 Floors
Rooms:
Bedrooms: 3
Bathrooms: 2
Half Baths: 1
Square Foot
Heated Square Footage: 2551
Under Roof Square Footage: 3356
Master Features:
Garden Tub / Jacuzzi
Dual Sinks
Private Toilet
Walk in Closet
His and Hers Closets
Shower stall (no tub)
Master on 2nd Floor
Dual Sinks
Private Toilet
Walk in Closet
His and Hers Closets
Shower stall (no tub)
Master on 2nd Floor
Extra Features:
Balcony Inside
Interior Columns
Fireplace
FrenchDoors
Front Load Garage
Laundry on 1st Floor
Open Floor Plan
Covered Porch on Front
Covered Porch on Rear
Covered Porch on Side
Cathedral or Vaulted Ceilings
Rotunda / Circular Stairs
Interior Columns
Fireplace
FrenchDoors
Front Load Garage
Laundry on 1st Floor
Open Floor Plan
Covered Porch on Front
Covered Porch on Rear
Covered Porch on Side
Cathedral or Vaulted Ceilings
Rotunda / Circular Stairs
Dimensions:
Width: 74'-0"
Depth: 58'-0"
Ridge Height: 25'-0"
Primary Roof Pitch: 4:12
Depth: 58'-0"
Ridge Height: 25'-0"
Primary Roof Pitch: 4:12
Kitchen Features
Island
Raised Bar / Snack Bar
Regular Pantry
Raised Bar / Snack Bar
Regular Pantry
BEDROOMS:
3
BATHS:
2
$0.00
Current package selection price.
More plans by this designer
THE RESOURCES TO TURN YOUR PLAN INTO A HOME!




