Rated 3.5/5
based on 11 customer reviews
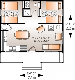
33-1942Bedrooms: 2 Bathrooms: 1 Heated Square Feet: 480
Fully Buildable Custom Home Plan Designs and Blueprints
CottageCountryLake front
* Note: Photographs may differ from actual blueprints. For more detailed information, please refer to the floor plans.
Plan Style:
CottageCountryLake front
Floors:
1 Floors
Rooms:
Bedrooms: 2
Bathrooms: 1
Square Foot
Heated Square Footage: 480
Under Roof Square Footage: 480
Extra Features:
Deck
Open Floor Plan
Cathedral or Vaulted Ceilings
Open Floor Plan
Cathedral or Vaulted Ceilings
Dimensions:
Width: 24'-0"
Depth: 20'-0"
Ridge Height: 13'-9"
Primary Roof Pitch: 2/12
Exterior Framing: 2x6
Depth: 20'-0"
Ridge Height: 13'-9"
Primary Roof Pitch: 2/12
Exterior Framing: 2x6
BEDROOMS:
2
BATHS:
1
$0.00
Current package selection price.
More plans by this designer
THE RESOURCES TO TURN YOUR PLAN INTO A HOME!




