Rated 3.5/5
based on 11 customer reviews
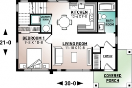
33-1944Bedrooms: 2 Bathrooms: 2 Heated Square Feet: 924
Fully Buildable Custom Home Plan Designs and Blueprints
ContemporaryCottageBuilder
* Note: Photographs may differ from actual blueprints. For more detailed information, please refer to the floor plans.
Plan Style:
ContemporaryCottageBuilder
Floors:
2 Floors
Rooms:
Bedrooms: 2
Bathrooms: 2
Square Foot
Heated Square Footage: 924
Under Roof Square Footage: 1009
Master Features:
Master on 2nd Floor
Master Split from other bedrooms
Master Split from other bedrooms
Extra Features:
Exterior Columns
FrenchDoors
Laundry on 1st Floor
Open Floor Plan
Pocket Doors
Covered Porch on Front
FrenchDoors
Laundry on 1st Floor
Open Floor Plan
Pocket Doors
Covered Porch on Front
Dimensions:
Width: 30'-0"
Depth: 21'-0"
Ridge Height: 20'-11"
Main Ceiling: 8'-0"
Upper Ceiling: 8'-0"
Primary Roof Pitch: 2/12
Exterior Framing: 2x6
Depth: 21'-0"
Ridge Height: 20'-11"
Main Ceiling: 8'-0"
Upper Ceiling: 8'-0"
Primary Roof Pitch: 2/12
Exterior Framing: 2x6
BEDROOMS:
2
BATHS:
2
$0.00
Current package selection price.
More plans by this designer
THE RESOURCES TO TURN YOUR PLAN INTO A HOME!




