Rated 3.5/5
based on 11 customer reviews
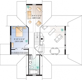
33-1946Bedrooms: 2 Bathrooms: 1 Heated Square Feet: 1480
Fully Buildable Custom Home Plan Designs and Blueprints
CottageCountryVacation
* Note: Photographs may differ from actual blueprints. For more detailed information, please refer to the floor plans.
Plan Style:
CottageCountryVacation
Floors:
2 Floors
Rooms:
Bedrooms: 2
Bathrooms: 1
Square Foot
Heated Square Footage: 1480
Under Roof Square Footage: 1512
Master Features:
Walk in Closet
Master on 1st Floor
Master Split from other bedrooms
Master on 1st Floor
Master Split from other bedrooms
Extra Features:
Deck
Balcony Outside
Fireplace
FrenchDoors
Laundry in Basement
Open Floor Plan
Balcony Outside
Fireplace
FrenchDoors
Laundry in Basement
Open Floor Plan
Dimensions:
Width: 40'-0'
Depth: 32'-0"
Ridge Height: 24'-10"
Main Ceiling: 8'-0"
Upper Ceiling: 8'-0"
Primary Roof Pitch: 12/12
Exterior Framing: 2x6
Depth: 32'-0"
Ridge Height: 24'-10"
Main Ceiling: 8'-0"
Upper Ceiling: 8'-0"
Primary Roof Pitch: 12/12
Exterior Framing: 2x6
Kitchen Features
Island
Breakfast Nook
Breakfast Nook
BEDROOMS:
2
BATHS:
1
$0.00
Current package selection price.
More plans by this designer
THE RESOURCES TO TURN YOUR PLAN INTO A HOME!




