Rated 3.5/5
based on 11 customer reviews
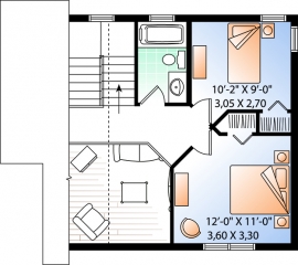
33-1947Bedrooms: 2 Bathrooms: 1 Half Baths: 1 Heated Square Feet: 1050
Fully Buildable Custom Home Plan Designs and Blueprints
CottageVacationCountry
* Note: Photographs may differ from actual blueprints. For more detailed information, please refer to the floor plans.
Plan Style:
CottageVacationCountry
Floors:
2 Floors
Rooms:
Bedrooms: 2
Bathrooms: 1
Half Baths: 1
Square Foot
Heated Square Footage: 1050
Under Roof Square Footage: 1050
Master Features:
Master on 2nd Floor
Extra Features:
Deck
Exterior Columns
FrenchDoors
Laundry in Basement
Open Floor Plan
Covered Porch on Front
Exterior Columns
FrenchDoors
Laundry in Basement
Open Floor Plan
Covered Porch on Front
Dimensions:
Width: 24'-0"
Depth: 24'-0"
Ridge Height: 29'-10"
Main Ceiling: 8'-0"
Upper Ceiling: 8'-0"
Primary Roof Pitch: 12/12
Exterior Framing: 2x6
Depth: 24'-0"
Ridge Height: 29'-10"
Main Ceiling: 8'-0"
Upper Ceiling: 8'-0"
Primary Roof Pitch: 12/12
Exterior Framing: 2x6
Kitchen Features
Country Kitchen
Island
Island
BEDROOMS:
2
BATHS:
1
$0.00
Current package selection price.
More plans by this designer
THE RESOURCES TO TURN YOUR PLAN INTO A HOME!




