Rated 3.5/5
based on 11 customer reviews
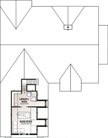
33-1950Bedrooms: 4 Bathrooms: 2 Half Baths: 1 Heated Square Feet: 3249
Fully Buildable Custom Home Plan Designs and Blueprints
FarmhouseCountryCraftsman
* Note: Photographs may differ from actual blueprints. For more detailed information, please refer to the floor plans.
Plan Style:
FarmhouseCountryCraftsman
Floors:
2 Floors
Rooms:
Bedrooms: 4
Bathrooms: 2
Half Baths: 1
Square Foot
Heated Square Footage: 3249
Under Roof Square Footage: 4065
Master Features:
Garden Tub / Jacuzzi
Dual Sinks
Walk in Closet
Shower stall (no tub)
Master on 1st Floor
Master Split from other bedrooms
Dual Sinks
Walk in Closet
Shower stall (no tub)
Master on 1st Floor
Master Split from other bedrooms
Extra Features:
Exterior Columns
Interior Columns
FrenchDoors
Side Load Garage
Laundry on 1st Floor
Open Floor Plan
Pocket Doors
Covered Porch on Front
Covered Porch on Rear
Interior Columns
FrenchDoors
Side Load Garage
Laundry on 1st Floor
Open Floor Plan
Pocket Doors
Covered Porch on Front
Covered Porch on Rear
Dimensions:
Width: 66'-0"
Depth: 80'-0"
Ridge Height: 25'-3"
Main Ceiling: 9'-0"
Upper Ceiling: 8'-0"
Primary Roof Pitch: 7/12
Exterior Framing: 2x6
Depth: 80'-0"
Ridge Height: 25'-3"
Main Ceiling: 9'-0"
Upper Ceiling: 8'-0"
Primary Roof Pitch: 7/12
Exterior Framing: 2x6
Kitchen Features
Country Kitchen
Island
Raised Bar / Snack Bar
Island
Raised Bar / Snack Bar
BEDROOMS:
4
BATHS:
2
$0.00
Current package selection price.
More plans by this designer
THE RESOURCES TO TURN YOUR PLAN INTO A HOME!




