Rated 3.5/5
based on 11 customer reviews
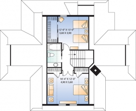
33-1955Bedrooms: 3 Bathrooms: 2 Heated Square Feet: 1832
Fully Buildable Custom Home Plan Designs and Blueprints
CountryLake frontVacation
* Note: Photographs may differ from actual blueprints. For more detailed information, please refer to the floor plans.
Plan Style:
CountryLake frontVacation
Floors:
2 Floors
Rooms:
Bedrooms: 3
Bathrooms: 2
Square Foot
Heated Square Footage: 1832
Under Roof Square Footage: 3044
Master Features:
Fireplace
Garden Tub / Jacuzzi
Dual Sinks
Walk in Closet
Shower stall (no tub)
Master on 1st Floor
Master Split from other bedrooms
Garden Tub / Jacuzzi
Dual Sinks
Walk in Closet
Shower stall (no tub)
Master on 1st Floor
Master Split from other bedrooms
Extra Features:
Deck
Exterior Columns
Fireplace
FrenchDoors
Laundry in Basement
Open Floor Plan
Pocket Doors
Covered Porch on Front
Exterior Columns
Fireplace
FrenchDoors
Laundry in Basement
Open Floor Plan
Pocket Doors
Covered Porch on Front
Dimensions:
Width: 38'-0"
Depth: 40'-0"
Ridge Height: 25'-8"
Main Ceiling: 9'-0"
Primary Roof Pitch: 12/12
Exterior Framing: 2x6
Depth: 40'-0"
Ridge Height: 25'-8"
Main Ceiling: 9'-0"
Primary Roof Pitch: 12/12
Exterior Framing: 2x6
Kitchen Features
Country Kitchen
Raised Bar / Snack Bar
Regular Pantry
Raised Bar / Snack Bar
Regular Pantry
BEDROOMS:
3
BATHS:
2
$0.00
Current package selection price.
More plans by this designer
THE RESOURCES TO TURN YOUR PLAN INTO A HOME!




