Rated 3.5/5
based on 11 customer reviews
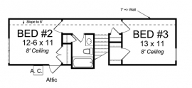
16-1876Bedrooms: 4 Bathrooms: 3 Heated Square Feet: 1782
Fully Buildable Custom Home Plan Designs and Blueprints
TraditionalRanchCraftsman
* Note: Photographs may differ from actual blueprints. For more detailed information, please refer to the floor plans.
Plan Style:
TraditionalRanchCraftsman
Floors:
2 Floors
Rooms:
Bedrooms: 4
Bathrooms: 3
Square Foot
Heated Square Footage: 1782
Under Roof Square Footage: 2405
Dimensions:
Width: 50'-0"
Depth: 46'-0"
Ridge Height: 24'-0"
Main Ceiling: 9'-0"
Upper Ceiling: 8'-0"
Primary Roof Pitch: 8/12
Exterior Framing: 2x4
Depth: 46'-0"
Ridge Height: 24'-0"
Main Ceiling: 9'-0"
Upper Ceiling: 8'-0"
Primary Roof Pitch: 8/12
Exterior Framing: 2x4
BEDROOMS:
4
BATHS:
3
$0.00
Current package selection price.
More plans by this designer
THE RESOURCES TO TURN YOUR PLAN INTO A HOME!




